Bcons City là dự án căn hộ thứ 7 của Tập đoàn Bcons Group triển khai tại khu vực Dĩ An Bình Dương. Được triển khai tại mặt tiền đường Thống Nhất, tuyến đường đắc địa tại khu vực trung tâm hành chính Thành phố Dĩ An. Nơi đây được đánh giá cao về tiềm năng phát triển trong tương lai.
Dự án Bcons City được thiết kế với mô hình compound khép kín giống như một không gian chuẩn “resort”, mang lại sự bình yên, thanh bình và tĩnh lặng hiếm thấy giữa lòng Thành phố. Không chỉ đơn thuần là nơi an cư, căn hộ Bcons City còn được xem là nơi tái tạo lại tinh thần và thể chất với không gian tươi mát phủ khắp khuôn viên.
TỔNG QUAN
TỔNG QUAN DỰ ÁN CĂN HỘ BCONS CITY

| Tên dự án: | Bcons City. |
| Vị trí tọa lạc: | Mặt tiền đường Thống Nhất, Bình Thắng, Dĩ An, Bình Dương. |
| Chủ đầu tư: | Bcons Group. |
| Tổng diện tích: | 44.000m2. |
| Mật độ xây dựng: | Khoảng 30%. |
| Quy mô: | 7 block. |
| Sản phẩm: | Căn hộ. |
| Số lượng: | 1944 căn hộ. |
| Diện tích căn hộ: | Từ 60m² – 91m². |
| Tiện ích: | Công viên, gym, hồ bơi, spa, yoga, vườn nướng BBQ, quảng trường, thư viện, khu ẩm thực, đường chạy bộ, phòng sinh hoạt chung,… |
VỊ TRÍ
VỊ TRÍ DỰ ÁN BCONS CITY
Dự án Bcons City có vị trí tọa lạc tại mặt tiền Đường Thống Nhất thuộc Xã Bình Thắng, Thành phố Dĩ An, Bình Dương. Đây là một trong những tuyến đường huyết mạch của khu vực, có khả năng kết nối đến các khu vực lân cận khá dễ dàng.
TIỆN ÍCH
TIỆN ÍCH DỰ ÁN BCONS CITY
Bcons City Dĩ An được trang bị một hệ thống tiện ích nội khu khá nổi bật, với hàng chục tiện ích được tích hợp với nhau. Với mục đích sẽ đáp ứng tối đa các nhu cầu sinh hoạt của cộng đồng cư dân nơi đây. Các tiện ích cụ thể như:
- Quán coffee sân thượng.
- Nhà hàng.
- Công viên nội khu.
- Hồ bơi tràn viền.
- Khu vui chơi trẻ em.
- Khu vực tập yoga, gym.
- Phòng sinh hoạt cộng đồng.
- Khu chăm sóc sắc đẹp.
THIẾT KẾ
THIẾT KẾ CĂN HỘ TẠI BCONS CITY
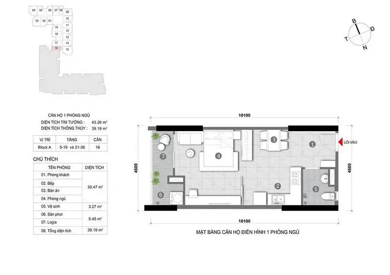
Dự án Bcons City Dĩ An có điểm mạnh khi mật độ xây dựng chỉ khoảng 30%, phần còn lại được bố trí những mảng xanh kiến tạo không gian sống hoàn mỹ, tươi mát và trong lành. Tại dự án, các căn hộ đều được bố trí những chi tiết xanh vào trong để tạo không sống trong lành và mát mẻ cho cư dân. Dự án mang đến cho khách hàng và các nhà đầu tư nhiều sự lựa chọn phù hợp, các căn hộ Bcons City Bình Dương được thiết kế với đa dạng các diện tích từ 60m² – 91m², từ 1 – 3 phòng ngủ.
- Căn hộ 1 phòng ngủ có diện tích: 39,19m2.
- Căn hộ 2 phòng ngủ có diện tích: 55,77m2 – 60,19m2.
- Căn hộ 3 phòng ngủ có diện tích: 78,03m2.



MẶT BẰNG TỔNG THỂ DỰ ÁN CĂN HỘ BCONS CITY
GIÁ VÀ PHƯƠNG THỨC THANH TOÁN
GIÁ TRỊ BCONS CITY MANG LẠI

